Fünf Häuser

While walking through the Swiss suburban landscape, one would typically encounter a rather low-density mix of residential pavilions, four-storey houses, classical villas, camping areas and Swiss-style „high-rise“ buildings. The neighbourhoods of today’s urban fabric are neither dense nor really green - the diverse typologies that compose them demonstrate how differently these housing types react to their outside spaces, to their surrounding views and to the materials used. Unfortunately, this typological reflection often stops at the boundaries of each individual plot, ignoring the wider urban context.

Fünf Häuser attempts to surpass this limitation. It applies the same position towards outside spaces, which is normally applied to single housing typologies but on a vertical setting. From a dense green setting at the base, the building then responds to a more urban context on the following level, then to a more semi-urban situation on the third floor, while the last floor interacts with the unveiling panorama of the surrounding mountains. 

The building can be seen as a collage of a selection of typical housing types found in the immediate surroundings of the plot. The types are stacked vertically due to the small footprint of the plot, with each type presenting a different typology vis-à-vis its outside spaces and views, according to the level at which it is situated.

On the ground floor, the “garden villa” literally grows out of the green. The long walls, which extend from interior to exterior help in defining more intimate spaces within the garden. Covered with green plants through the help of metal fences, they reflect the change of seasons within the apartment’s interior spaces. The inside of the apartment is rendered in a whiter than white finish, which helps in absorbing the surrounding green and maximizing the interior spaces.

One floor up, the “high-rise apartment” shadows with its balconies parts of the “garden villa”.  At this height, there are no interesting views nor can one access the garden. Inspired by a section of a typical high-rise social housing type, the concrete of the internal and external spaces frames the views while protecting the inside spaces from intrusive onlookers through the help of the concrete balustrades- in such a way that every opening in the facade is echoed with a balcony. The balconies, each with a specific function, entertain a dialogue with one another from the outside.

The second floor takes its inspiration from the „classic single house“. The house takes the shape of two shifted shoe-boxes and the shingle façade is a reference to the often very colourful and decorated exteriors of these houses.  As the house cantilevers towards one side, it generates a loggia space, which is quite typical of this typology of housing. The kitchen also transforms itself into an outside space when opening the sliding doors towards the loggia, and the interiors are once again finished in a white plaster, to best absorb the surrounding green, while the facade, on the contrary, is of a hunting green colour, in an attempt to assimilate with the trees. The typical flower-windows, as they were conceived in the 50’s, frame the view and create at the same time pleasing niches in the inside.

On top of this classic single house, sits an austere glass and aluminium „pavilion“. With an open and clear view towards the Swiss mountainous panorama, its windows unveil the surrounding views in almost every direction. As it is situated at a certain height, the inside spaces are relatively sheltered from any direct views from the surrounding houses and the typology of this apartment tries to make the best advantage of the views offered at this height. The pavilion is positioned on top of the project in a near-accidental manner like one would place a box in a garden. 

The fifth house is a small monolithic structure, akin to a „holiday cottage“, nestled on the roof. It houses a sauna serving all four families living in the house, and is a reference to the campers in the near camping site.

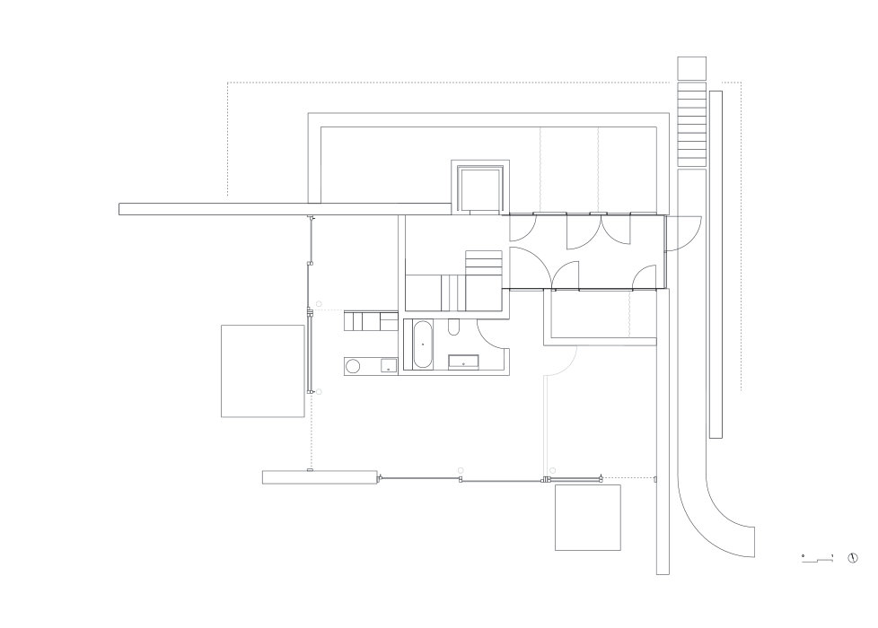
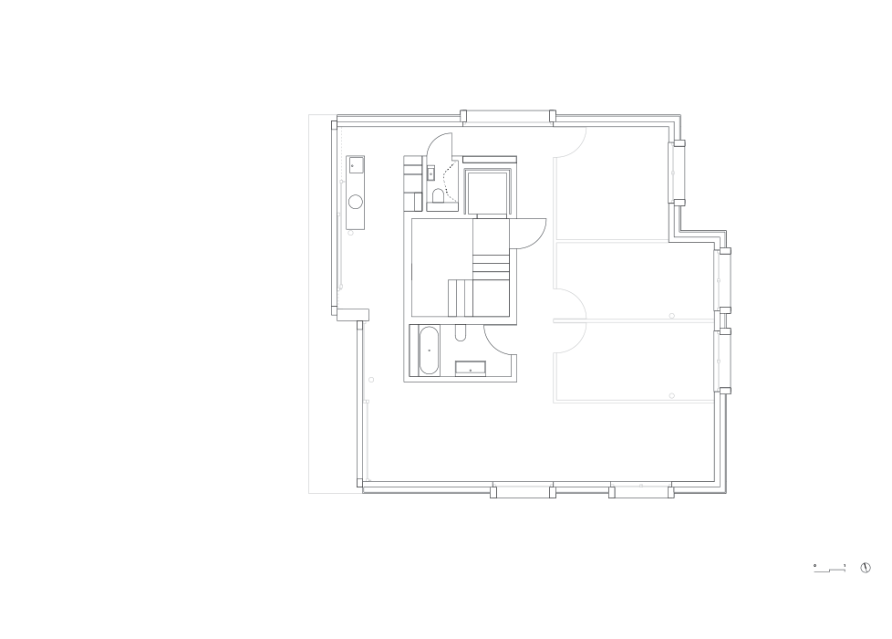
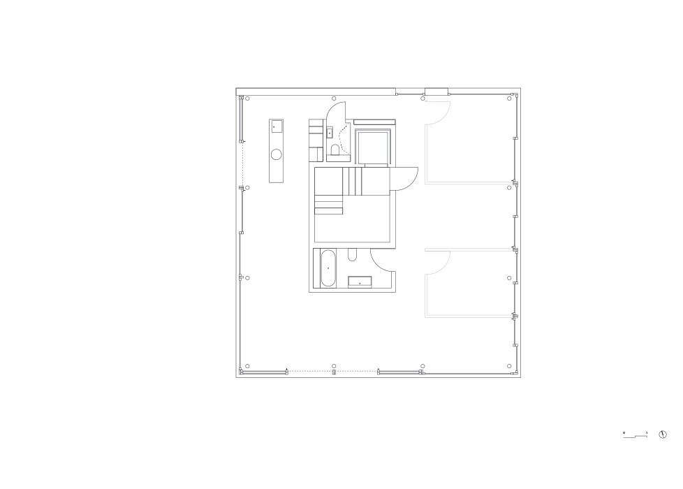
All four apartments have a similar floor plan that consists of a core where all the services are gathered, surrounded on the periphery by the living and sleeping spaces. The core and the façade are the structural elements of the project, while the inside partitions are conceived in a flexible and modular manner; the room separations can be changed and adapted depending on the number of rooms needed.

The project can be perceived as a „best of“ of typical suburban Swiss residential typologies. However, by stacking each of these types, one on top of the other, the result offers a rather surprising take on the rather challenging task of building a multi-level residential typology and offers an alternative to the ever-expanding Swiss suburban sprawl. The vertical stacking brakes down the scale of the building, allowing for a better integration with the surrounding neighbourhood, rather than seeking once again to create a new urban condition that would be confined to the limits of the plot. By considering the suburb as a new laboratory for experimental typologies, Fünf Häuser is an invitation for more density, social interaction and architectural diversity - more urban quality in the semi-urban.

Rapperswil, 11 June 2011

Images W. Mair, G. Micciché, T. Ambrosetti

P. Robin, L. Lenherr

Go back